Non ha ancora trovato nulla di adatto? Sfoglia il nostro negozio
De Fr It
Wie der Standard Nachhaltiges Bauen ‚Städtebau und Architektur’ misst – Teil II

Der Modulor ist ein Mass- respektive Proportionssystem, das von Le Corbusier entwickelt wurde. Auf dem Goldenen Schnitt und den menschlichen Proportionen basierend, ist es ein Versuch, der Architektur - ganz in der Tradition von Vitruv - ein menschliches Mass und damit eine mathematische Ordnung zu geben.
© Le Corbusier Le Grand, Phaidon

5 aprile 2022
Marina Tüscher | Da un punto di vista personale

Wie der Standard Nachhaltiges Bauen ‚Städtebau und Architektur’ misst – Teil II

Raumluftqualität, Lebenszykluskosten oder Energiebedarf eines Gebäudes lassen sich zweifelsohne berechnen. Anhand welcher Kriterien aber lässt sich städtebauliche Qualität messen? Was macht nachhaltige Architektur aus? Der SNBS macht nachhaltiges Bauen an insgesamt 45 Indikatoren fest. Diese betrachten die gesellschaftliche, wirtschaftliche und ökologische Nachhaltigkeit in integraler Weise, vom Standortentscheid über die Projektentwicklung bis hin zum Bauprozess. Zudem bauen sie auf Bestehendem auf, beziehen die bekannten Schweizer Normen und Richtlinien mit ein und orientieren sich an der Schweizer Baukultur.

Wie der Standard Nachhaltiges Bauen ‚Städtebau und Architektur’ misst – Teil II
Wie der Standard Nachhaltiges Bauen ‚Städtebau und Architektur’ misst – Teil II

Ein kompakter, dreigeschossiger Ersatzneubau tritt an die Stelle eines eingeschossigen, winkelförmigen Werkstattgebäudes. Zusammen mit den Bestandesbauten wird ein angenehm proportionierter Hofraum gebildet. Die einfache Geometrie des Neubaus klärt die städtebauliche Situation und wirkt innerhalb des heterogenen Kontexts beruhigend © Dietrich Schwarz Architekten Zürich

Der SNBS schlägt die sechs Messgrössen ‚1: Städtebau, Siedlung und Aussenraum’, ,2: Architektonisches Konzept’, ’3:Funktionalität’, ‚4:Material, Konstruktion und Farbe’, ‚5:Baukultureller Wert und Gesamtwirkung’ und ‚Fairness und Auftragsbedingungen’ vor. Die Messgrössen 1 und 2 sind im Teil I vorgestellt, nachfolgend die Überlegungen für die Messung der Qualität bei den Messgrössen 3-6.

3 Funktionalität

  • Qualität und Zweckmässigkeit der Raumorganisation und Eignung für die vorgesehene Nutzung
  • Bewegungsführung im Gebäude, Hierarchien der Öffentlichkeitsgrade
  • Gebäudestruktur, Tragwerkskonzept
  • Berücksichtigung der Anforderungen aus dem Nutzungskonzept

Ob die Raumorganisation ihren Zweck erfüllt und sich für die vorgesehene Nutzung auch tatsächlich eignet, ist hinsichtlich Nachhaltigkeit sicherlich mitunter einer der entscheidendsten Faktoren. Stellt das Beurteilungsgremium die Eignung für die vorgesehene Nutzung in Frage, verweisen Auftraggeberinnen und Auftraggeber gerne auf den Stand der Vermietung. Angesichts des steten Wohnraummangels ist die Nachfrage auf dem Markt jedoch wenig Indiz für die Qualität des Angebots. Während beim architektonischen Konzept gestalterische Prinzipien beurteilt werden, gilt das Augenmerk bei der Funktionalität mehr der Raumorganisation und den Bewegungsabläufen im Detail. Es stellen sich Fragen wie: Eignen sich die Räume für vorgesehene Nutzung und Zielpublikum? Ist die Bewegungsführung selbstverständlich, sind die verschiedenen Nutzungen gut auffindbar? Sind Dimension und Belichtung der Eingangshalle und des Treppenhauses angemessen? Tragen Struktur und Tragwerkskonzept dazu bei, dass das Gebäude langfristig nutzbar, sprich bei Bedarf auch flexibel umnutzbar bleibt?

Wie der Standard Nachhaltiges Bauen ‚Städtebau und Architektur’ misst – Teil II
Wie der Standard Nachhaltiges Bauen ‚Städtebau und Architektur’ misst – Teil II

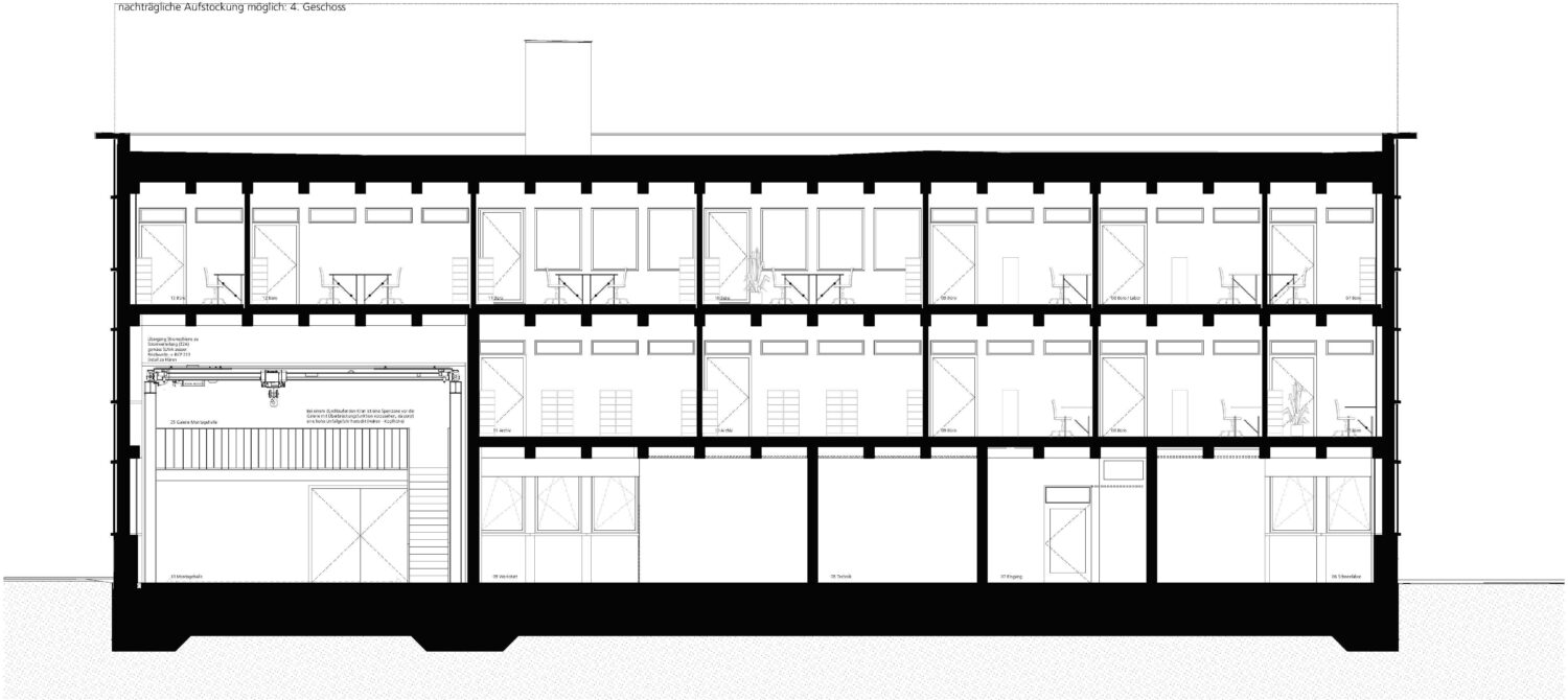
Der gewählte dreibündige Typ scheint für die vorgesehene Nutzung gut geeignet. Die Büro-/Laborräume in den oberen Geschossen zeigen angenehme Raumproportionen. Der Holzskelettbau mit Holz-Betonverbunddecken und einem aussteifenden Kern aus Beton ist sinnfällig, das gewählte Büroraster von 1.45 m adäquat. Alle Trennwände sind nicht-tragend konzipiert, was eine sehr gute Flexibilität für spätere Nutzungsänderungen garantiert. Zudem ist das Tragwerk so ausgelegt, dass eine nachträgliche Aufstockung eines 4.Geschosses und damit eine Gebäudeerweiterung problemlos möglich ist © Dietrich Schwarz Architekten Zürich

4 Material, Konstruktion und Farbe

  • Schlüssigkeit und Materialgerechtigkeit der konstruktiven Lösungen
  • Übersetzung des konstruktiven Prinzips in ein architektonisches Bild
  • Qualität der Integration von Gebäude- und Umwelttechnik ins architektonische Konzept
  • Übereinstimmung von Farbgebung und Materialität sowie von Raumwirkung und Lichtführung mit der angestrebten Atmosphäre und - bei Bildungsbauten, - den pädagogischen Zielsetzungen
  • Berücksichtigung der Anforderungen aus dem Nutzungskonzept

Für die Langlebigkeit und die atmosphärische Wirkung eines Bauwerks sind Material, Konstruktion und Farbe von besonderer Bedeutung. Die Erfahrung zeigt, dass die Wahl der Konstruktion gerne auf konventionelle Standardlösungen fällt, die womöglich schlüssig sind, aber gestalterisch nicht zwingend überzeugen. Besonders wichtig für den Qualitätsnachweis ist deshalb die Frage nach der Übersetzung in ein architektonisches Bild. Nach welchen Gestaltungsprinzipien ist die Fassade gegliedert? Wie geht der Entwurf mit Sockelgeschoss, Dach oder Attika um? Wie zeichnet sich der Eingangsbereich aus? Wirkt das Verhältnis von Fensteröffnungen zu Wand stimmig? Ist die atmosphärische Wirkung dem Ort angemessen? Werden Solarzellen, um nur ein Beispiel zu nennen, gestalterisch in die Fassade integriert? Architektonische Konzepte, die Gebäude- und Umwelttechnik sichtbar integrieren, bilden allerdings – heute noch – die Ausnahme.

Wie der Standard Nachhaltiges Bauen ‚Städtebau und Architektur’ misst – Teil II
Wie der Standard Nachhaltiges Bauen ‚Städtebau und Architektur’ misst – Teil II

Das Gebäude zeigt eine wohlproportionierte Fassadengliederung mit einem ruhigen Ausdruck. Die horizontale Bänderung – das Verbindungsmotiv zum Bestand - wird durch die Kombination des engen Fensterrhythmus mit den über zwei Raster spannenden Solarzellengruppen unter angenehme Spannung gesetzt © Dietrich Schwarz Architekten Zürich

5 Baukultureller Wert, Gesamtwirkung

  • Bewertung des baukulturellen Beitrags/Innovationsgehalts
  • Stellenwert und Identität des Bauwerks in seinem Kontext, Ausdruck des Bauwerks, atmosphärische Wirkung
  • Verhältnismässigkeit zur Aufgabenstellung
  • Gesamteindruck, Qualität der Arbeit, Auseinandersetzungstiefe

‚Messgrösse 5’ bildet gewissermassen die Synthese der ‚Messgrössen 1-4’ und geht zugleich noch einen Schritt darüber hinaus. Gelingt es den Verantwortlichen mit dem Bauprojekt einen baukulturellen (Mehr-)Wert zu schaffen? Ist der Entwurf beispielsweise hinsichtlich Verdichtung oder Umgang mit Lärm wegweisend? Dass nur vereinzelte Projekte überraschende Konzepte zeigen, lässt allerdings vermuten, dass Innovation in gewissem Widerspruch zu Rentabilität steht. Stellenwert, Identität und atmosphärische Wirkung des Bauwerks sind entscheidend für dessen gesellschaftliche Akzeptanz und deshalb ganz wesentliche Aspekte der Nachhaltigkeit. Nicht zuletzt rücken die Frage nach der Verhältnismässigkeit zur Aufgabenstellung sowie diejenige nach der Auseinandersetzungstiefe neben dem Ergebnis auch den Prozess in den Fokus. Entspricht die Art des Vergabeverfahrens der Bauaufgabe dem Projektumfang? Ist es im Sinne der Nachhaltigkeit zugunsten einer Risikominimierung auf die Ausarbeitung eines Gestaltungsplans zu verzichten? Wurden im Rahmen einer Machbarkeitsstudie verschiedene Szenarien und Lösungsvorschläge geprüft?

Wie der Standard Nachhaltiges Bauen ‚Städtebau und Architektur’ misst – Teil II

Das werkhofartige Industrieareal ist heute geprägt von einer gewissen Unwirtlichkeit, erzeugt durch Volumetrie, Abwicklung, Materialisierung und Detaillierung der bestehenden Gebäude und Aussenräume. Dieser Atmosphäre wirken der aufgeräumte Hofraum als auch das neue Gebäude selbst mit seiner ruhigen, feinräumlich sorgfältigen Fassadengestaltung positiv entgegen - der Ort gewinnt an Identität © Dietrich Schwarz Architekten Zürich

6 Fairness und Auftragsbedingungen

  • Klare Definition des Auftrages im Rahmen des Konkurrenzverfahrens
  • Höhe der Entschädigung im Konkurrenzverfahren und der zu vergebenden Preissumme
  • Aussagen zu Honorarparametern aller Planer*innenverträge
  • Aussagen zu den im späteren Auftragsverhältnis zu erbringenden Leistungen
  • Urheberrechte

Nicht zuletzt sind faire und transparente Auftragsbedingungen vertrauensbildende Grundlage für eine respektvolle, konstruktive Zusammenarbeit und damit der erste Schritt in Richtung Qualitätssicherung.

Soviel zur qualitativen Beurteilung durch das Beurteilungsgremium. Nun zur Bewertung: Pro Messgrösse ist maximal 1 Punkt möglich. Sowohl der Wohnneubau in Baden als auch das neue SLF-Werkstattgebäude in Davos erreichten die maximale Punktzahl 6. Erfahrungen mit dem Label zeigen aber: Überraschend viele Projekte genügen den städtebaulichen und architektonischen Anforderungen des SNBS nicht oder zumindest nicht auf Anhieb. Wie können Bauherrschaft und Architekt*in sicherstellen, dass der Indikator 102.1 zum Mehrwert und nicht zum Stolperstein wird?

Ganz wichtig ist der Zeitpunkt der Beurteilung: Idealerweise diskutiert das Beurteilungsgremium ein Bauvorhaben vor dem Abschluss des Vorprojekts. Je früher die Beurteilung erfolgt, desto grösser ist der Handlungsspielraum respektive der Mehrwert. Ebenso wichtig: Es sind nicht nur die Architekt*innen gefordert nachhaltige Gebäudekonzepte zu entwickeln. Eine sehr grosse Verantwortung kommt auch der Bauherrschaft zu. Daran erinnert eine deutsche Inschrift, die oft auf Fassaden von alten Stadthäusern zu finden ist: ‚Zum Wohle der Stadt, zur Zierde des Platzes, zur Freude des Bauherrn’. Offenbar dachten unsere Vorfahrinnen und Vorfahren schon ganz im Sinne des SNBS: Bauen ist nämlich nicht Privatsache, sondern ein sozialer Akt.

Marina Tüscher

Marina Tüscher *1976 in Zürich, studierte Architektur an der ETH Zürich, arbeitete von 2009 bis 2015 beim Hochbauamt der Stadt St. Gallen, baute zunächst die Fachstelle für Wettbewerbe auf und leitete dann als Stellvertreterin des Stadtbaumeisters die Abteilung Projektmanagement, war zuletzt Stellvertreterin des Kantonsbaumeisters im Kanton Thurgau und ist seit 2021 Projektleiterin SNBS beim Verein Minergie in Basel.
www.snbs-hochbau.ch

Marina Tüscher
close
close