Non ha ancora trovato nulla di adatto? Sfoglia il nostro negozio
De Fr It
Micro-Apartmentsiedlung ‚Wagonlits’. Neues Wohnen auf kleinem Raum in Schlieren

Wagon 2 und 3 © Reinhard Zimmermann

22 marzo 2022
Reto Pfenninger | Da un punto di vista personale

Micro-Apartmentsiedlung ‚Wagonlits’. Neues Wohnen auf kleinem Raum in Schlieren

Die Apartmentsiedlung ‚Wagonlits’ in Schlieren der ECOREAL Schweizerische Immobilien Anlagestiftung ist ein Bauvorhaben mit 168 Microapartements von grösstenteils 33m2 Wohnfläche, welche alle über ein Laubengangsystem erschlossen werden. Im Erdgeschoss an der Badenerstrasse steht den Bewohnerinnen und Bewohnern ein grosser Waschsalon und ein kollektiv nutzbarer Gemeinschaftsraum zur Verfügung.

Anforderungen der Bauherrschaft

Nach dem Kauf des Grundstückes im Jahr 2016 durch die ECOREAL Schweizerische Immobilien Anlagestifung haben die Architekten in enger Zusammenarbeit mit der Bauherrschaft die programmatischen wie auch inhaltlichen Themenfelder in Workshops diskutiert und einander gegenübergestellt. Die Absicht der Bauherrschaft, ein preiswertes Angebot an Kleinwohnungen am Stadtrand von Zürich zu bauen, stand dabei stets im Vordergrund.

Die Bewohnerschaft der Apartmentsiedlung ‚Wagonlits’ soll äusserst heterogen sein und teilt vor allem das Bedürfnis nach flächenmässig optimiertem Wohnraum an sehr gut erschlossener Lage. Die Haltestelle der Limmattalbahn befindet sich vor der Haustüre. Verschiedene Lebensphasen, unterschiedliche Bewegungsradien und Tagesabläufe stellen vielfältige Anforderungen an das direkte Wohnumfeld. Die Aufenthaltsdauer kann von wenigen Monaten bis hin zu mehreren Jahren variieren.

‚Wagonlits’ soll ein offenes System sein, das sowohl Räume für den Rückzug als auch Orte für Begegnungen beinhaltet. Es kann attraktives Nachtquartier mit Wäscheservice sein, bietet aber auch die Möglichkeit, ein ‚Zuhause’ zu werden. Durch das zusammenhängende System von offenen Lauben mit wenigen punktuellen Vertikalerschliessungen soll jede Wohnung zu einem Teil der ganzen Siedlung werden. Selbst bei den optimierten Raumverhältnissen der kleinsten Einheit ist auf der dem Laubengang abgewandten Seite der Wohnung die Privatheit gewährleistet. Die sorgfältige Gestaltung und Pflege der gemeinsam genutzten Flächen - Höfe mit Aufenthaltsqualität, der zentrale Park und das urbane Wohnzimmer im Erdgeschoss an der Badenerstrasse - sollen die Grundlage für eine angenehme Nachbarschaft auf kürzere oder längere Zeit bilden.

Micro-Apartmentsiedlung ‚Wagonlits’. Neues Wohnen auf kleinem Raum in Schlieren

SBB-RIC-Wagon-1961 © Historic Schlieren - DVZO

Ausgangslage: Gestaltungsplan

Im engen Rahmen der Gestaltungsplanvorgaben, die aufgrund der hohen Lärmbelastung entlang des Geleiseraums und entlang der Badenerstrasse wenig Spielraum offenlassen, schliessen im Inneren des Areals Gebäudevolumetrien und Aussenräume an die Bebauung der benachbarten Überbauungen an. In der Parkallee, dem Park und dem Weg überlagern sich Siedlung und Quartier. Zwischen dem Gebäudeschwarm der Siedlung 'Stadtstück' im Westen und der Schulanlage ‚Lernfabrik’ im Osten vernetzt die Apartmentsiedlung ‚Wagonlits’ sowohl in Quer- wie auch Längsverbindungen die Areale.

Micro-Apartmentsiedlung ‚Wagonlits’. Neues Wohnen auf kleinem Raum in Schlieren

Situationsplan mit Regelgeschoss © op-arch

‚Wagonlits’ versteht sich so als Teil von ‚Schlieren West’ und somit als eine Ergänzung zum grossen Angebot an 3- und 4-Zimmer-Wohnungen, die in den letzten zehn Jahren zwischen Bahnhof und Stadtgrenze entstanden sind. Die 97 1-Zimmer- und 66 2-Zimmer-Wohnungen runden das Angebot im jungen Stadtteil ab.

Die schmalen Zeilenbauten ermöglichen auf dem Baufeld B1 eine zusätzliche 3-geschossige Zeile und auf dem Baufeld B2 komplettieren zwei 3-geschossige Zeilen die Gesamtanlage zur maximalen Ausnützung. Zwischen den Zeilen entstehen so Hofräume mit einander zugewandten Laubengängen.

Die Kellerräume in den Wohnungen

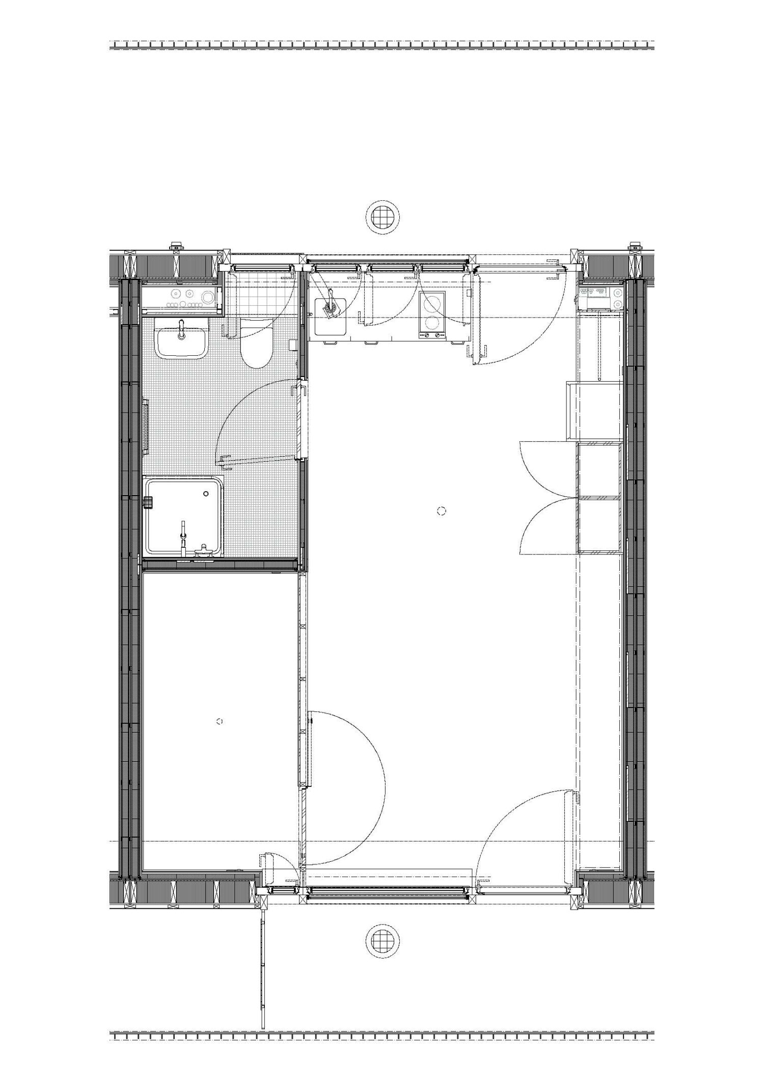
Im Untergeschoss finden wegen der gesetzlich notwendigen hohen Anzahl an Parkplätzen die 168 Kellerabteile à mind. 6m2 keinen Platz mehr. Die Kellerräume sind demzufolge in die Wohnungen integriert und zählen so auch zur Ausnützung (nicht zu verwechseln mit dem PBG, bei dem ein max. 5m2 Reduit/Whg. nicht anrechenbar ist). Mit einer Breite von 1.60m findet ein Doppelbett in diesem kleinen Raum seinen Platz. Baurechtlich als Kellerabteil deklariert, wird eine Tür - keine Schiebtür - vom Bauamt gefordert, dafür ist ein sog. 'Kellerfenster' mit einer max. 8%-igen Bodenfläche erlaubt, welches der Fassade seinen unverwechselbaren Charakter verleiht. Als Stauraum für Koffer, Taschen, Snowboards und dgl. steht ein Holzbrett über die gesamte Länge der Wohnung zur Verfügung. Bei allen Baukörpern, auch entlang der lärmexponierten Seite zur Bahn und zur Badenerstrasse, können die Kellerräume als Schlafkojen genutzt werden.

Micro-Apartmentsiedlung ‚Wagonlits’. Neues Wohnen auf kleinem Raum in Schlieren

Grundriss 1:20 Standartwohnung © op-arch

Micro-Apartmentsiedlung ‚Wagonlits’. Neues Wohnen auf kleinem Raum in Schlieren

Standartwohnung © Reinhard Zimmermann

Gebäudetechnik

Im Gestaltungsplan standen drei unterschiedliche Anforderungen zur Energieversorgung zur Auswahl: SIA Energieeffizienzpfad, Minergie P-Eco oder 100% erneuerbare Energien. Der Entscheid für 100% erneuerbare Energie ermöglicht eine sprichwörtlich ‚schlanke’ Haustechnik. Unter dem Aspekt 'so wenig wie möglich, soviel wie nötig' ist z.B. nur die Parkgarage mit der gesetzlich notwendigen Zuluft ausgestattet. In den Wohnungen werden weder die Bäder noch die Küchen künstlich be- und entlüftet. Aussenfenster zum Laubengang ermöglichen die notwendige Frischluftzufuhr. Sämtliche Schächte sind entlang der Fassaden angeordnet und erlauben spätere Umplanungen, auch geschossweise, für andere Nutzungen, wie z.B. frei unterteilbare Büroräume oder für zukünftige andere Wohnkonfigurationen.

Micro-Apartmentsiedlung ‚Wagonlits’. Neues Wohnen auf kleinem Raum in Schlieren

Steigschächte entlang Fassade © op-arch

Tragwerk

Die Stützengeometrie der Parkgarage bestimmt die Tragstruktur der Hochbauten. Über der Fahrbahn liegen in den Obergeschossen die Wohnungen. Zwischen der Geometrie der Stützenachsen von 5.55m (2 Parkfelder) in Längsrichtung und 7.95m in Querrichtung liegen aufgereiht die einzelnen Wohneinheiten. Die Pendelstützen liegen beidseitig ausserhalb des Dämmperimeters. Die Deckenplatten werden ohne Kragplattenanschlüsse betoniert. 1m breite Perimeterdämmstreifen werden innenseitig direkt an die Unterseite der Betondecken montiert. Das geringe Gewicht des vorfabrizierten Holzelementbaus für die Fassade und der Gipsständerwände für den Innenausbau erfordert je eine Betonscheibe an der Peripherie der Bauten zur Erdbebenaussteifung und minimiert in extremis den Anteil an grauer Energie. Der Wärmeverlust dieser Konstruktion ist nur bei einer 100% erneuerbaren Energiezufuhr möglich.

Micro-Apartmentsiedlung ‚Wagonlits’. Neues Wohnen auf kleinem Raum in Schlieren

Querschnitt 1:20 © op-arch

Fazit

Im Zusammenspiel der Anforderungen des Gestaltungsplans, einer enormen Lärmbelastung, der sehr hohen Kosten des Grundstückerwerbes und einer angestrebten Miete von unter CHF 1'000 für die 33m2 Wohnungen wurden sämtliche baulichen und systemischen Anforderungen für ein ‚low-tech-Bauwerk’ hinterfragt und so weit als möglich vermieden. Planen und Bauen wie in den 60er-Jahren stand dabei stets im Vordergrund des Denkens und Handelns.

Reto Pfenninger

Reto Pfenninger *1963 in Zürich, ist Partner im Architekturbüro op-arch in Zürich https://www.op-arch.ch und unterrichtet am Institut Urban Landscape der ZHAW in Winterthur. Reto Pfenninger hat an der Ingenieurschule Winterthur und an der Akademie der Bildenden Künste München Architektur studiert. Er ist seit 2002 Mitglied des BSA und war von 2003 bis 2008 Mitglied der Stadtbildkommission Zug. Von 2006 bis 2018 war er Dozent im Bachelor und Master am Institut Architektur, Bau und Geomatik der FHNW.

Reto Pfenninger
close
close